Porzione di bifamiliare in vendita

Settimo Milanese, in via IV Novembre - Seguro
€ 485.000
3 locali 3 locali
118 Mq 118 Mq
2 bagni 2 bagni

Porzione di bifamiliare in vendita

Settimo Milanese, in via IV Novembre - Seguro

Descrizione annuncio

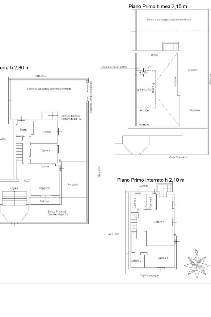
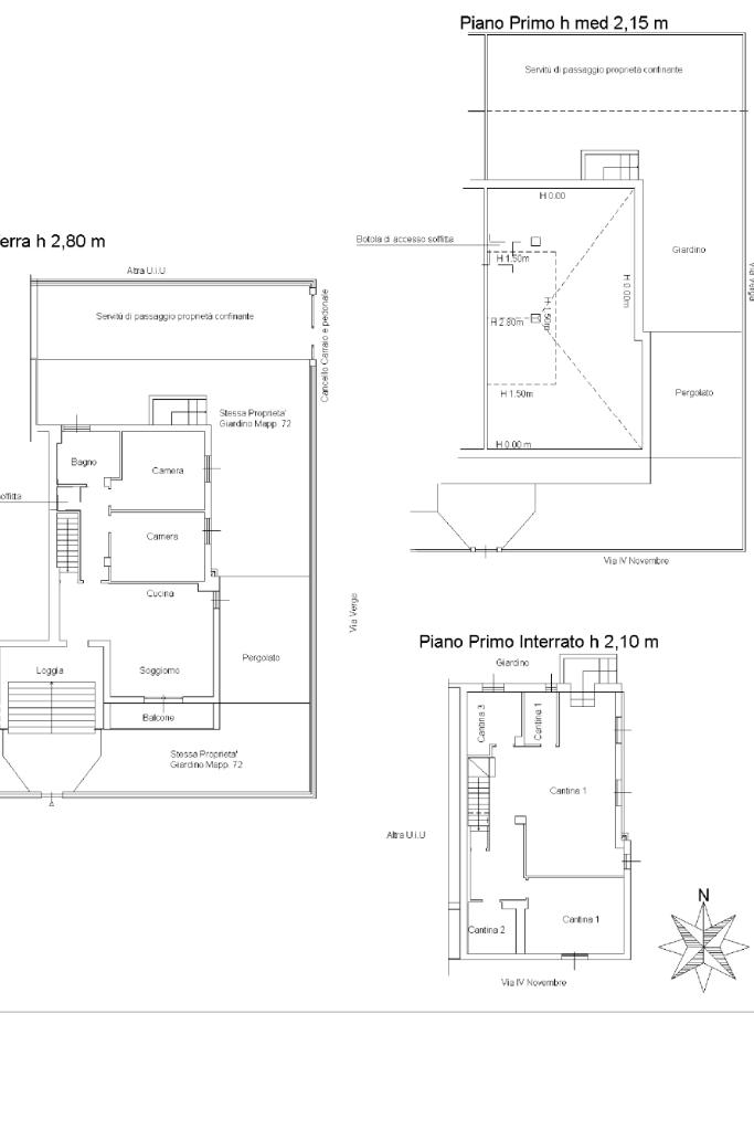
Nel cuore di Seguro, frazione di Settimo Milanese, proponiamo in vendita una splendida porzione di bifamiliare completamente ristrutturata, ideale per chi desidera ampi spazi e comfort moderni.

L'abitazione si sviluppa su due livelli:

> Piano rialzato: accogliente soggiorno con cucina a vista di generosa metratura, una spaziosa camera matrimoniale, una seconda camera anch'essa di ottime dimensioni e un bagno finestrato con ampio box doccia.

> Piano seminterrato/taverna: ampio locale soggiorno open space con angolo cottura, perfetto come zona relax, un secondo bagno di servizio, un locale tecnico/lavanderia con caldaia, un comodo ripostiglio fruibile come dispensa e una terza stanza sfruttabile come camera per gli ospiti o stanza hobby oppure studio per smart working.

Dalla taverna, attraverso una seconda porta blindata, si accede all'ampio giardino piastrellato con zona coperta da una raffinata tettoia in legno; sempre all'esterno si possono anche parcheggiare comodamente due auto.

Ristrutturazioni e dotazioni

>Intervento completo nel 2020: infissi nuovi, pavimentazione in gres porcellanato, bagni rinnovati, porte interne sostituite, cancello elettrico e impianto citofonico nuovi, impianto elettrico rifatto con antifurto, aria condizionata con pompa di calore, tende da sole, tetto nuovo con isolamento isotec, inferriare e finestre in PVC in taverna.

>Aggiornamenti del 2022: pannelli solari, nuova caldaia a condensazione, installazione di batteria di accumulo da 12kWh e installazione colonnina per ricarica auto elettrica.

Questa soluzione rappresenta il connubio perfetto tra il fascino della casa indipendente e l'efficenza delle tecnologie moderne, offrendo ambienti versatili e un elevato livello di comfort abitativo.

Mostra tutto

Nelle vicinanze

Trasporto pubblico Trasporto pubblico
Settimo (Seguro)
Settimo (Seguro)
40 m
Via Alberella - Via Pavese (Seguro)
Via Alberella - Via Pavese (Seguro)
280 m
Ricariche auto elettriche Ricariche auto elettriche
Settimo Milanese Keplero | EnelX
630 m
Redimec Group
770 m
Settimo Milanese Tangenziale | EnelX
2,0 Km
Settimo per Vighignolo | EnelX
2,6 Km
LIDL Milano Forze Armate
2,9 Km
Scuole Scuole
Scuole
1,6 Km
Asilo Nido
1,8 Km
Scuola Materna
1,9 Km
Scuola Primaria Luigi Einaudi
1,9 Km
Scuola elementare
2,0 Km
Farmacia Farmacia
Farmacia
530 m
Parafarmacia Esselunga
2,1 Km
Farmacia Culzoni SNC
2,2 Km
Farmacia Comunale
2,5 Km
Ospedali Ospedali
Ospedali
2,1 Km
Supermercati Supermercati
Coop
1,0 Km
Pozzoli Big Market
1,4 Km
IN'S Mercato
2,1 Km
Esselunga
2,2 Km
IN'S
2,3 Km
Negozi Negozi
Carrefour Express
1,6 Km
Negozi
2,2 Km
Dama Fruits
2,3 Km
Ina Market
2,4 Km
Simply Market
3,0 Km
Bar Bar
Bar Pasticceria Ranieri
1,3 Km
Bar
1,4 Km
Chocolat
1,5 Km
The Sisters
1,9 Km
Bar Angelo
2,0 Km
Ristoranti Ristoranti
Cristian Magri
410 m
Pizza e Mozzarella
440 m
Panta Rei
1,6 Km
Latitud 00
1,7 Km
Fà Ballà l’Oeuch
2,0 Km
Mostra tutto

Caratteristiche

Rif.:
61111359
Piano:
Terra con giardino di 2
Totale piani:
2
Posti auto:
1
Camere da letto:
2
Arredamento:
Assente
Mostra tutto
Prezzo Prezzo
€ 485.000
Rata mutuo Rata mutuo
€ 2.222 / mese
Proponi il tuo prezzoProponi il tuo prezzo

Altre caratteristiche

Descrizione dei locali
Cucina non abitabile

Classe Energetica

A2
A2
A2
A2
A2
A2
A2
A2
A2
EP globale non rinnovabile:
87.90 kW h/m² anno
EP invernale del fabbricato:
EP estiva del fabbricato:
Riscaldamento:
Autonomo
Tipo impianto:
A radiatori
Tipo alimentazione:
Metano

Ti interessa visionare l'immobile?

Fissa un appuntamento  Fissa un appuntamento

Richiedi informazioni

* Questi campi sono obbligatori

Calcola il tuo mutuo

Semplice e senza impegno
Anticipo

( % )
Mutuo

( % )

pochi semplici passi

inserisci i tuoi dati
Questionario completato
Grazie per aver richiesto un appuntamento senza impegno con un nostro Consulente del Credito e Assicurativo.

Hai inserito correttamente tutti i dati necessari e a breve riceverai una e-mail con un link da convalidare per inviare i tuoi dati.
Affiliato
Alfeo Srl
Via Panzeri, 12 20019 Settimo Milanese (MI)

Il nostro staff


  • Morena Costantin
    Affiliata

  • Roberto Folloni
    Responsabile

  • Cristina Lo Baido
    Collaboratrice

  • Stefano Passavanti
    Collaboratore
Via Panzeri, 12 20019 Settimo Milanese (MI)
Zona: Settimo Milanese
Mostra su mappa
Orari: dal lunedì al venerdì - 9:30/12:30 e 14:30/20:15; sabato - 9:30/13:00 e 14:00/17:00
Affiliato
Alfeo Srl
Via Panzeri, 12 20019 Settimo Milanese (MI)

2025 Tecnocasa Franchising S.p.A. - P. IVA 08365160152 - Via Monte Bianco 60/A 20089 Rozzano (MI). Ogni agenzia ha un proprio titolare ed è autonoma. Privacy policy | Policy utilizzo | Cookie policy