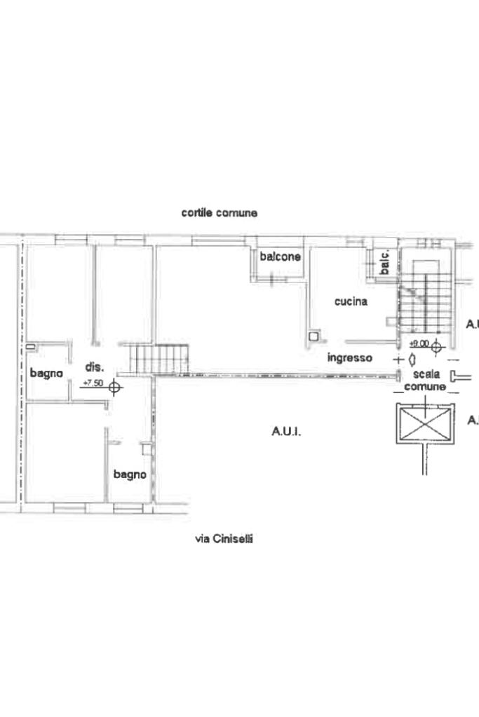
Quadrilocale in vendita

Settimo Milanese, via Ciniselli
€ 345.000
4 locali 4 locali
117 Mq 117 Mq
2 bagni 2 bagni

Quadrilocale in vendita

Settimo Milanese, via Ciniselli

Descrizione annuncio

Nel cuore di Settimo Milanese proponiamo in vendita splendido quadrilocale su due livelli, completamente ristrutturato con finiture moderne e materiali di qualità.

L’immobile si inserisce in uno stabile recentemente riqualificato grazie al Superbonus 110%, che ha previsto il rifacimento della facciata con cappotto termico garantendo oggi elevati standard di efficienza energetica e comfort abitativo.

Gli ambienti sono ben distribuiti, luminosi e curati in ogni dettaglio. Gli interni si distinguono per lo stile contemporaneo, le superfici eleganti e l’ottimo stato di manutenzione, rendendolo pronto da abitare senza necessità di interventi.

Completa la proprietà una spaziosa cantina.

POSSIBILITÀ DI BOX AD EURO 20.000

La posizione è uno dei veri punti di forza: centralissima e strategica, con tutti i principali servizi a pochi passi (negozi, scuole, mezzi pubblici, aree verdi), ideale sia per famiglie sia per chi desidera vivere in un contesto comodo e ben collegato.

Una soluzione perfetta per chi cerca qualità, comfort ed efficienza energetica in una delle vie più richieste di Settimo Milanese.

Mostra tutto

Nelle vicinanze

Trasporto pubblico Trasporto pubblico
Via Vittorio Veneto - Via Don Sturzo (Settimo)
Via Vittorio Veneto - Via Don Sturzo (Settimo)
150 m
Largo Giovanni XXIII (Settimo)
Largo Giovanni XXIII (Settimo)
170 m
Ricariche auto elettriche Ricariche auto elettriche
Redimec Group
1,1 Km
Settimo per Vighignolo | EnelX
1,3 Km
Settimo Milanese Tangenziale | EnelX
1,4 Km
Settimo Milanese Keplero | EnelX
1,5 Km
Cornaredo Colombo | EnelX
2,2 Km
Scuole Scuole
Asilo Nido
580 m
Scuola Materna
680 m
Scuola elementare
740 m
Scuola Media Statale "Paolo Sarpi"
770 m
Scuola Elementare di Vighignolo
2,0 Km
Farmacia Farmacia
Farmacia
890 m
Farmacia Culzoni SNC
940 m
Parafarmacia Esselunga
1,4 Km
Supermercati Supermercati
Coop
580 m
IN'S Mercato
910 m
Esselunga
1,4 Km
Cooperativa di Consumo
2,0 Km
Bennet
2,1 Km
Negozi Negozi
Carrefour Express
260 m
Dama Fruits
1,1 Km
Bar Bar
Bar Pasticceria Ranieri
130 m
Chocolat
160 m
The Sisters
640 m
Central Bar
800 m
Nico's Bar
820 m
Ristoranti Ristoranti
Pizza e Mozzarella
950 m
La Comida
1,1 Km
Oasi Rosa
1,1 Km
da Antonio
1,1 Km
Osteria del VII miglio
1,1 Km
Mostra tutto

Caratteristiche

Rif.:
61195619
Piano:
3 di 4 con ascensore (Piano su più livelli)
Balconi:
2
Camere da letto:
3
Arredamento:
Parziale
Condizionamento:
Autonomo
Mostra tutto
Prezzo Prezzo
€ 345.000
Rata mutuo Rata mutuo
€ 1.626 / mese
Spese annue Spese annue
€ 1.800
Proponi il tuo prezzoProponi il tuo prezzo

Classe Energetica

D
D
D
D
D
D
D
D
D
EP globale non rinnovabile:
84.56 kW h/m² anno
EP invernale del fabbricato:
EP estiva del fabbricato:
Anno di costruzione:
1983
Riscaldamento:
Autonomo
Tipo impianto:
A radiatori
Tipo alimentazione:
Metano

Ti interessa visionare l'immobile?

Fissa un appuntamento  Fissa un appuntamento

Richiedi informazioni

Clicca su Leggi per aprire l'informativa
* Questi campi sono obbligatori

Calcola il tuo mutuo

Semplice e senza impegno
Anticipo

( % )
Mutuo

( % )

pochi semplici passi

inserisci i tuoi dati
Questionario completato
Grazie per aver richiesto un appuntamento senza impegno con un nostro Consulente del Credito e Assicurativo.

Hai inserito correttamente tutti i dati necessari e a breve riceverai una e-mail con un link da convalidare per inviare i tuoi dati.
Affiliato
Alfeo Srl
Via Panzeri, 12 20019 Settimo Milanese (MI)

Il nostro staff


  • Morena Costantin
    Affiliata

  • Roberto Folloni
    Responsabile

  • Cristina Lo Baido
    Collaboratrice

  • Stefano Passavanti
    Collaboratore
Via Panzeri, 12 20019 Settimo Milanese (MI)
Zona: Settimo Milanese
Mostra su mappa
Orari: dal lunedì al venerdì - 9:30/12:30 e 14:30/20:15; sabato - 9:30/13:00 e 14:00/17:00
Affiliato
Alfeo Srl
Via Panzeri, 12 20019 Settimo Milanese (MI)

2026 Tecnocasa Franchising S.p.A. - P. IVA 08365160152 - Via Monte Bianco 60/A 20089 Rozzano (MI). Ogni agenzia ha un proprio titolare ed è autonoma. Privacy policy | Policy utilizzo | Cookie policy