Trilocale in vendita

Settimo Milanese, via Turati
€ 342.000
3 locali 3 locali
105 Mq 105 Mq
2 bagni 2 bagni

Trilocale in vendita

Settimo Milanese, via Turati

Descrizione annuncio

A Settimo Milanese, in uno dei contesti residenziali più ricercati della zona, proponiamo in vendita uno splendido tre locali completamente ristrutturato nel 2021, situato al secondo piano di una palazzina signorile con poche unità abitative.

L’appartamento colpisce immediatamente per la cura dei dettagli, gli spazi ben distribuiti e le finiture di alto livello.

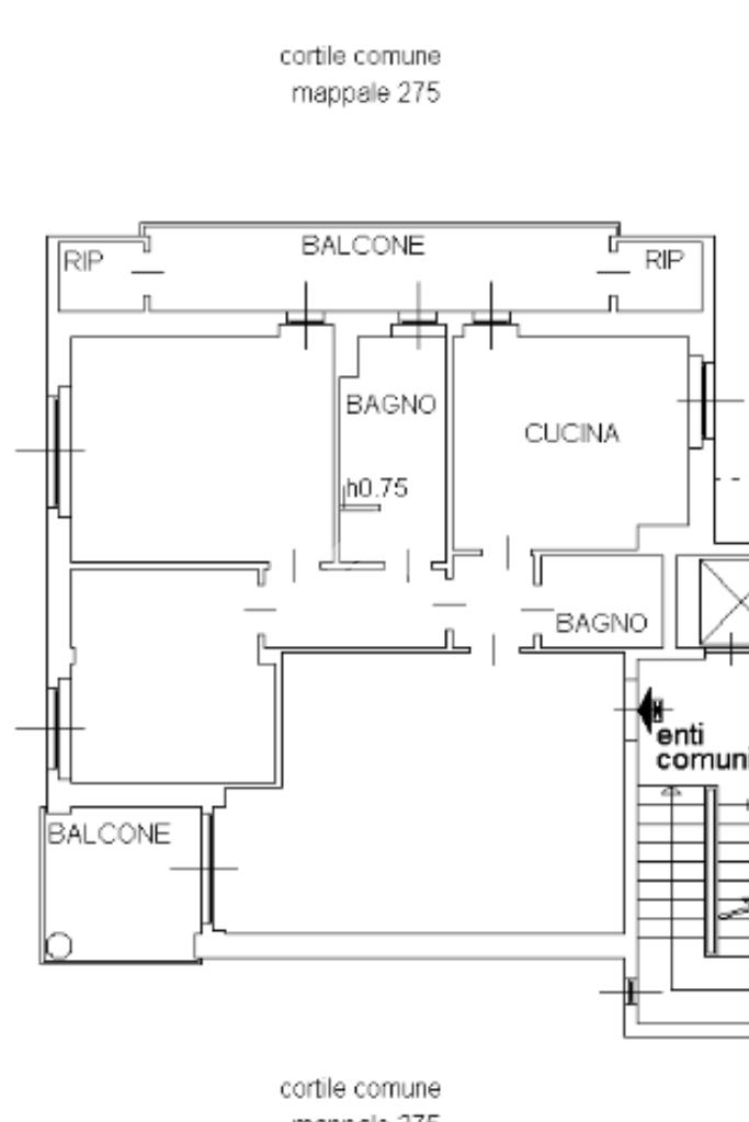
La zona giorno è composta da un ampio e luminoso soggiorno con accesso diretto al terrazzino, perfetto per godersi momenti di relax all’aperto, e da una spaziosa cucina abitabile con uscita su un lungo balcone che serve anche il bagno e la camera matrimoniale. Sul balcone sono inoltre presenti due pratici ripostigli esterni, ideali per organizzare al meglio gli spazi.

La zona notte offre due camere da letto e doppi servizi, garantendo comfort e funzionalità per tutta la famiglia.

L’immobile è stato interamente ristrutturato nel 2021 con materiali di pregio e si presenta in condizioni impeccabili. Tra le dotazioni troviamo:

aria condizionata in tutti gli ambienti

infissi di ultima generazione

zanzariere nuove su tutte le finestre

finiture moderne e ricercate

La posizione è assolutamente strategica: in pieno centro, a pochi passi da negozi, scuole, servizi e mezzi pubblici, ma allo stesso tempo inserita in un contesto tranquillo e riservato.

Completano la proprietà:

box auto

cantina

posto auto di proprietà

Una soluzione unica nel suo genere, perfetta per chi cerca comfort, qualità e una posizione centrale in uno dei contesti più richiesti di Settimo Milanese.

Mostra tutto

Nelle vicinanze

Trasporto pubblico Trasporto pubblico
Via Gramsci (Settimo Milanese)
Via Gramsci (Settimo Milanese)
100 m
Trasporto pubblico
240 m
Ricariche auto elettriche Ricariche auto elettriche
Settimo per Vighignolo | EnelX
640 m
Settimo Milanese Tangenziale | EnelX
780 m
Redimec Group
1,6 Km
Cornaredo Don Sturzo | EnelX
2,0 Km
Cornaredo Colombo | EnelX
2,3 Km
Scuole Scuole
Scuola Media Statale "Paolo Sarpi"
390 m
Scuola elementare
430 m
Scuola Materna
470 m
Asilo Nido
570 m
Scuola Elementare di Vighignolo
1,2 Km
Farmacia Farmacia
Farmacia Culzoni SNC
320 m
Parafarmacia Esselunga
580 m
Farmacia
1,3 Km
Supermercati Supermercati
IN'S Mercato
330 m
Esselunga
600 m
Coop
1,2 Km
Cooperativa di Consumo
1,4 Km
Bennet
1,8 Km
Negozi Negozi
Dama Fruits
190 m
Carrefour Express
890 m
Negozi
2,8 Km
Bar Bar
Seven Bar
60 m
Bar Angelo
320 m
Nico's Bar
360 m
Central Bar
410 m
The Sisters
570 m
Ristoranti Ristoranti
La Comida
40 m
Oasi Rosa
120 m
Pizzeria da Carmen
210 m
Osteria del VII miglio
240 m
da Antonio
280 m
Mostra tutto

Caratteristiche

Rif.:
61191277
Piano:
2 di 3 con ascensore (Piano medio)
Box:
1
Posti auto:
1
Balconi:
2
Camere da letto:
2
Mostra tutto
Prezzo Prezzo
€ 342.000
Rata mutuo Rata mutuo
€ 1.617 / mese
Spese annue Spese annue
€ 2.000
Proponi il tuo prezzoProponi il tuo prezzo

Classe Energetica

B
B
B
B
B
B
B
B
B
EP globale non rinnovabile:
77.22 kW h/m² anno
EP invernale del fabbricato:
EP estiva del fabbricato:
Anno di costruzione:
1990
Riscaldamento:
Autonomo
Tipo impianto:
A radiatori
Tipo alimentazione:
Metano

Ti interessa visionare l'immobile?

Fissa un appuntamento  Fissa un appuntamento

Richiedi informazioni

Clicca su Leggi per aprire l'informativa
* Questi campi sono obbligatori

Calcola il tuo mutuo

Semplice e senza impegno
Anticipo

( % )
Mutuo

( % )

pochi semplici passi

inserisci i tuoi dati
Questionario completato
Grazie per aver richiesto un appuntamento senza impegno con un nostro Consulente del Credito e Assicurativo.

Hai inserito correttamente tutti i dati necessari e a breve riceverai una e-mail con un link da convalidare per inviare i tuoi dati.
Affiliato
Alfeo Srl
Via Panzeri, 12 20019 Settimo Milanese (MI)

Il nostro staff


  • Morena Costantin
    Affiliata

  • Roberto Folloni
    Responsabile

  • Cristina Lo Baido
    Collaboratrice

  • Stefano Passavanti
    Collaboratore
Via Panzeri, 12 20019 Settimo Milanese (MI)
Zona: Settimo Milanese
Mostra su mappa
Orari: dal lunedì al venerdì - 9:30/12:30 e 14:30/20:15; sabato - 9:30/13:00 e 14:00/17:00
Affiliato
Alfeo Srl
Via Panzeri, 12 20019 Settimo Milanese (MI)

2026 Tecnocasa Franchising S.p.A. - P. IVA 08365160152 - Via Monte Bianco 60/A 20089 Rozzano (MI). Ogni agenzia ha un proprio titolare ed è autonoma. Privacy policy | Policy utilizzo | Cookie policy