Trilocale in vendita

Settimo Milanese, via IV Novembre - Seguro
€ 238.000
3 locali 3 locali
105 Mq 105 Mq
2 bagni 2 bagni

Trilocale in vendita

Settimo Milanese, via IV Novembre - Seguro

Descrizione annuncio

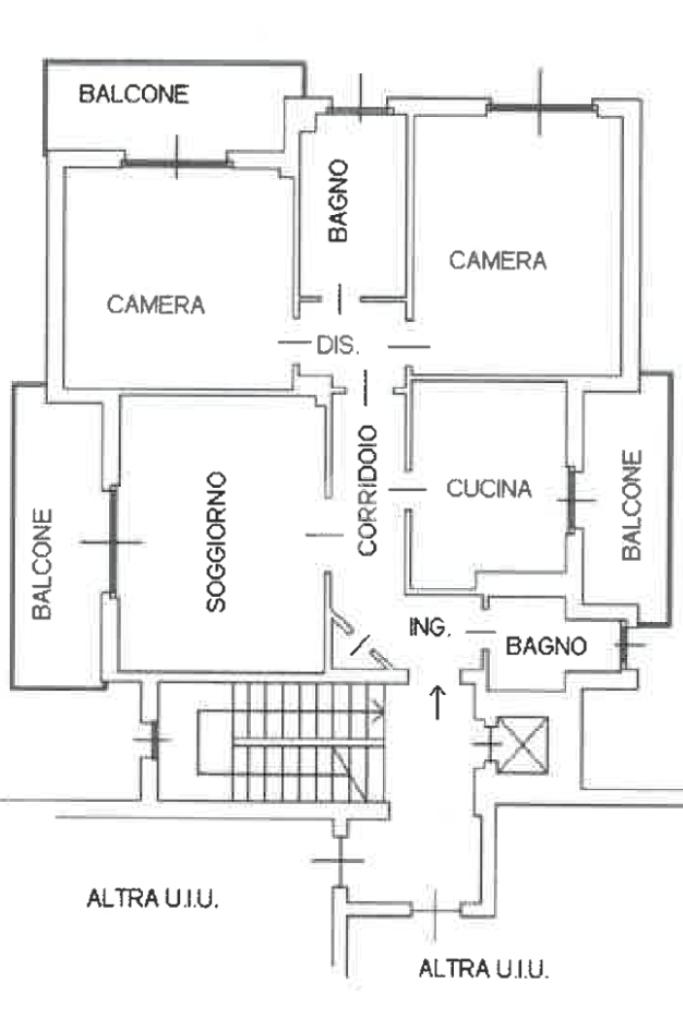
Nel cuore della tranquilla frazione di Seguro, a pochi minuti dal centro di Settimo Milanese, proponiamo in vendita un ampio tre locali con doppi servizi inserito in un elegante contesto signorile di fine anni ’70, ben abitato e circondato dal verde.

Appena varcata la porta si percepisce subito ciò che fa la differenza: spazi ampi e distribuiti in modo impeccabile.

Adiacente all'ingresso è presente un comodo bangno di servizio con box doccia finestrato e un funzionale ripostiglio.

Il soggiorno è ampio e luminoso completo di balcone, ideale come prolungamento estivo; la cucina abitabile è separata e funzionale, completa anch'essa di balcone, ideale per chi ama vivere davvero la casa.

La zona notte, ben distinta, offre due camere da letto di generosa metratura, di cui una con balcone, e un secondo bagno finestrato con vasca.

L’appartamento si presenta allo stato originale, una grande opportunità per chi desidera personalizzare gli ambienti secondo il proprio gusto, valorizzando una base già eccellente per metratura e disposizione.

Completano la proprietà box auto e cantina.

Libero subito, pronto per diventare la casa giusta per chi cerca tranquillità, comfort e ambienti che oggi non è più facile trovare.

Mostra tutto

Nelle vicinanze

Trasporto pubblico Trasporto pubblico
Settimo (Seguro)
Settimo (Seguro)
50 m
Via Alberella - Via Pavese (Seguro)
Via Alberella - Via Pavese (Seguro)
290 m
Ricariche auto elettriche Ricariche auto elettriche
Settimo Milanese Keplero | EnelX
610 m
Redimec Group
790 m
Settimo Milanese Tangenziale | EnelX
2,0 Km
Settimo per Vighignolo | EnelX
2,7 Km
LIDL Milano Forze Armate
2,9 Km
Scuole Scuole
Scuole
1,6 Km
Asilo Nido
1,8 Km
Scuola Materna
1,9 Km
Scuola Primaria Luigi Einaudi
1,9 Km
scuola maedia inf iqbal masik
2,0 Km
Farmacia Farmacia
Farmacia
530 m
Parafarmacia Esselunga
2,2 Km
Farmacia Culzoni SNC
2,2 Km
Farmacia Comunale
2,5 Km
Ospedali Ospedali
Ospedali
2,1 Km
Casa di Cura Ambrosiana
3,0 Km
Supermercati Supermercati
Coop
1,0 Km
Pozzoli Big Market
1,4 Km
IN'S Mercato
2,2 Km
Esselunga
2,2 Km
IN'S
2,3 Km
Negozi Negozi
Carrefour Express
1,6 Km
Negozi
2,1 Km
Dama Fruits
2,3 Km
Ina Market
2,4 Km
Simply Market
3,0 Km
Bar Bar
Bar Pasticceria Ranieri
1,3 Km
Bar
1,4 Km
Chocolat
1,5 Km
The Sisters
1,9 Km
Bar Angelo
2,0 Km
Ristoranti Ristoranti
Cristian Magri
410 m
Pizza e Mozzarella
450 m
Panta Rei
1,6 Km
Latitud 00
1,7 Km
Fà Ballà l’Oeuch
2,0 Km
Mostra tutto

Caratteristiche

Rif.:
61178119
Piano:
2 di 4 con ascensore (Piano medio)
Box:
1
Balconi:
3
Camere da letto:
2
Arredamento:
Assente
Mostra tutto
Prezzo Prezzo
€ 238.000
Rata mutuo Rata mutuo
€ 1.112 / mese
Spese annue Spese annue
€ 2.800
Proponi il tuo prezzoProponi il tuo prezzo

Classe Energetica

E
E
E
E
E
E
E
E
E
EP globale non rinnovabile:
205.43 kW h/m² anno
EP invernale del fabbricato:
EP estiva del fabbricato:
Anno di costruzione:
1979
Riscaldamento:
Centralizzato
Tipo impianto:
A radiatori
Tipo alimentazione:
Metano

Ti interessa visionare l'immobile?

Fissa un appuntamento  Fissa un appuntamento

Richiedi informazioni

Clicca su Leggi per aprire l'informativa
* Questi campi sono obbligatori

Calcola il tuo mutuo

Semplice e senza impegno
Anticipo

( % )
Mutuo

( % )

pochi semplici passi

inserisci i tuoi dati
Questionario completato
Grazie per aver richiesto un appuntamento senza impegno con un nostro Consulente del Credito e Assicurativo.

Hai inserito correttamente tutti i dati necessari e a breve riceverai una e-mail con un link da convalidare per inviare i tuoi dati.
Affiliato
Alfeo Srl
Via Panzeri, 12 20019 Settimo Milanese (MI)

Il nostro staff


  • Morena Costantin
    Affiliata

  • Roberto Folloni
    Responsabile

  • Cristina Lo Baido
    Collaboratrice

  • Stefano Passavanti
    Collaboratore
Via Panzeri, 12 20019 Settimo Milanese (MI)
Zona: Settimo Milanese
Mostra su mappa
Orari: dal lunedì al venerdì - 9:30/12:30 e 14:30/20:15; sabato - 9:30/13:00 e 14:00/17:00
Affiliato
Alfeo Srl
Via Panzeri, 12 20019 Settimo Milanese (MI)

2026 Tecnocasa Franchising S.p.A. - P. IVA 08365160152 - Via Monte Bianco 60/A 20089 Rozzano (MI). Ogni agenzia ha un proprio titolare ed è autonoma. Privacy policy | Policy utilizzo | Cookie policy