Quadrilocale in vendita

Settimo Milanese, appartamento Via Matteotti - Vighignolo
€ 288.000
4 locali 4 locali
126 Mq 126 Mq
2 bagni 2 bagni

Quadrilocale in vendita

Settimo Milanese, appartamento Via Matteotti - Vighignolo

Descrizione annuncio

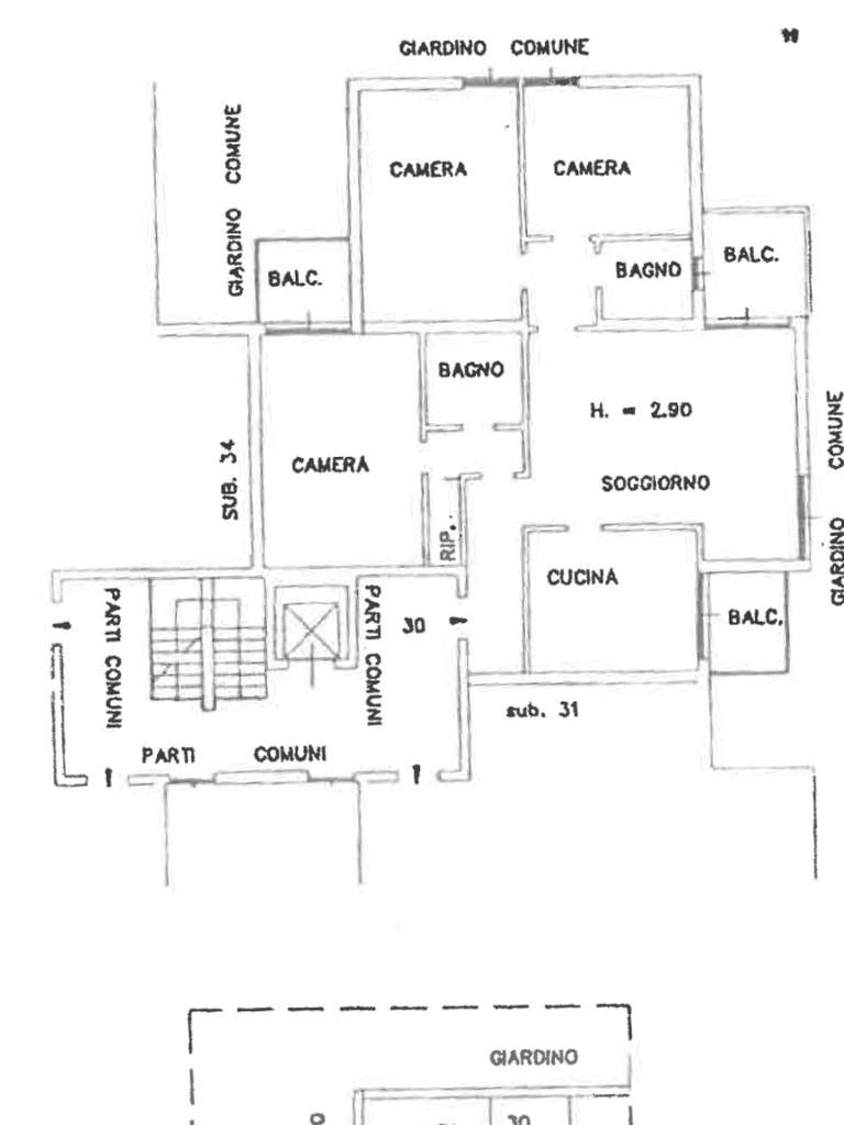
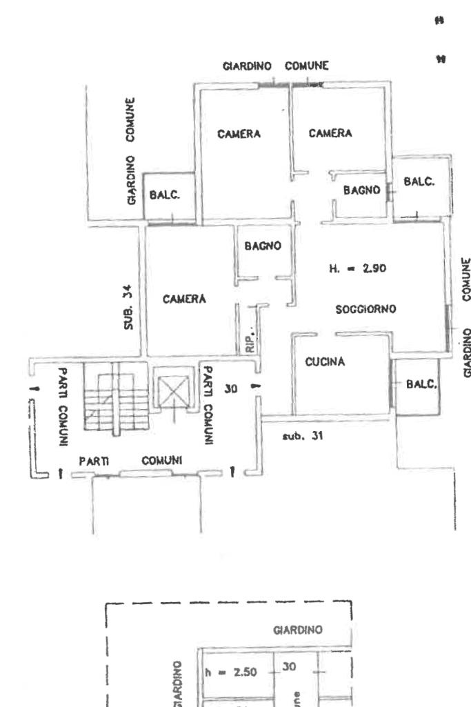
In uno dei contesti più tranquilli e ricercati di Vighignolo, proponiamo in vendita un luminoso appartamento di quattro locali situato all’interno di un condominio recentemente riqualificato grazie agli interventi del Superbonus 110%, con cappotto termico, facciata, canne fumarie e tetto rifatti.

L’immobile è circondato da un’ampia area verde condominiale, ideale per chi desidera vivere in un ambiente riservato, immerso nella natura ma a pochi minuti dal centro di Settimo Milanese.

L’appartamento si distingue per la funzionale distribuzione degli spazi :

una prima zona notte con camera matrimoniale e bagno, perfetta come suite privata;

una seconda zona notte composta da due camere da letto e un ulteriore bagno, ideale per figli o ospiti.

La zona giorno, spaziosa e luminosa, si apre su tre balconi che regalano affacci nel verde e garantiscono ottima luminosità durante tutto il giorno.

Completano la proprietà una cantina e un box autorimessa.

Il riscaldamento è autonomo, elemento che assicura una gestione efficiente dei consumi.

La posizione è particolarmente comoda: a pochi passi si trovano fermata del mezzo per Molino Dorino, le scuole oltre a panetteria, farmacia e altri servizi di prima necessità.

Un’abitazione ideale per famiglie che cercano tranquillità, spazi ampi e comfort moderno, senza rinunciare alla comodità dei collegamenti e dei servizi cittadini.

Mostra tutto

Nelle vicinanze

Trasporto pubblico Trasporto pubblico
Via Mereghetti - Via Airaghi (Vighignolo)
Via Mereghetti - Via Airaghi (Vighignolo)
130 m
Via Vighignolo - Via Don Minzoni (Vighignolo)
Via Vighignolo - Via Don Minzoni (Vighignolo)
200 m
Ricariche auto elettriche Ricariche auto elettriche
Settimo per Vighignolo | EnelX
600 m
Cornaredo Don Sturzo | EnelX
1,1 Km
Cornaredo Brera | EnelX
1,3 Km
A4 ADS Rho Sud | EnelX EVA+
1,7 Km
Cornaredo Colombo | EnelX
1,7 Km
Scuole Scuole
Scuola Elementare di Vighignolo
60 m
Scuole
1,0 Km
Scuola Media Statale "Paolo Sarpi"
1,3 Km
Scuola elementare
1,3 Km
Scuola Materna
1,4 Km
Farmacia Farmacia
Farmacia
190 m
Farmacia Culzoni SNC
1,1 Km
Parafarmacia Esselunga
1,7 Km
Farmacia San Martino
3,0 Km
Supermercati Supermercati
Cooperativa di Consumo
360 m
Bennet
930 m
IN'S Mercato
1,1 Km
NaturaSì
1,2 Km
Carrefour
1,3 Km
Negozi Negozi
Dama Fruits
1,0 Km
Negozi
1,7 Km
Carrefour Express
1,7 Km
I sapori del granaio
2,5 Km
ATLETAMANIA
2,7 Km
Bar Bar
Bar
220 m
Seven Bar
1,1 Km
Central Bar
1,2 Km
Nico's Bar
1,2 Km
The Sisters
1,3 Km
Ristoranti Ristoranti
Ristorante L'Angolo
220 m
Oasi Rosa
700 m
Olonella
760 m
da Antonio
940 m
Osteria del VII miglio
960 m
Mostra tutto

Caratteristiche

Rif.:
61134566
Piano:
1 di 6 con ascensore (Piano basso)
Box:
1
Balconi:
3
Camere da letto:
2
Arredamento:
Assente
Mostra tutto
Prezzo Prezzo
€ 288.000
Rata mutuo Rata mutuo
€ 1.358 / mese
Spese annue Spese annue
€ 1.500
Proponi il tuo prezzoProponi il tuo prezzo

Classe Energetica

E
E
E
E
E
E
E
E
E
EP globale non rinnovabile:
180.10 kW h/m² anno
EP globale rinnovabile:
180.10 kW h/m² anno
EP invernale del fabbricato:
EP estiva del fabbricato:
Anno di costruzione:
1983
Riscaldamento:
Autonomo
Tipo impianto:
A radiatori
Tipo alimentazione:
Metano

Ti interessa visionare l'immobile?

Fissa un appuntamento  Fissa un appuntamento

Richiedi informazioni

Clicca su Leggi per aprire l'informativa
* Questi campi sono obbligatori

Calcola il tuo mutuo

Semplice e senza impegno
Anticipo

( % )
Mutuo

( % )

pochi semplici passi

inserisci i tuoi dati
Questionario completato
Grazie per aver richiesto un appuntamento senza impegno con un nostro Consulente del Credito e Assicurativo.

Hai inserito correttamente tutti i dati necessari e a breve riceverai una e-mail con un link da convalidare per inviare i tuoi dati.
Affiliato
Alfeo Srl
Via Panzeri, 12 20019 Settimo Milanese (MI)

Il nostro staff


  • Morena Costantin
    Affiliata

  • Roberto Folloni
    Responsabile

  • Cristina Lo Baido
    Collaboratrice

  • Stefano Passavanti
    Collaboratore
Via Panzeri, 12 20019 Settimo Milanese (MI)
Zona: Settimo Milanese
Mostra su mappa
Orari: dal lunedì al venerdì - 9:30/12:30 e 14:30/20:15; sabato - 9:30/13:00 e 14:00/17:00
Affiliato
Alfeo Srl
Via Panzeri, 12 20019 Settimo Milanese (MI)

2025 Tecnocasa Franchising S.p.A. - P. IVA 08365160152 - Via Monte Bianco 60/A 20089 Rozzano (MI). Ogni agenzia ha un proprio titolare ed è autonoma. Privacy policy | Policy utilizzo | Cookie policy