Trilocale in vendita

Settimo Milanese, appartamento via matteotti - Vighignolo
€ 185.000
Prezzo aggiornato
3 locali 3 locali
85 Mq 85 Mq
1 bagno 1 bagno

Trilocale in vendita

Settimo Milanese, appartamento via matteotti - Vighignolo

Descrizione annuncio

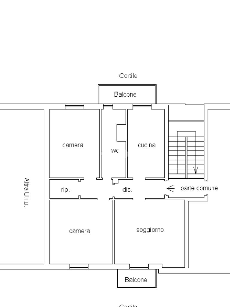
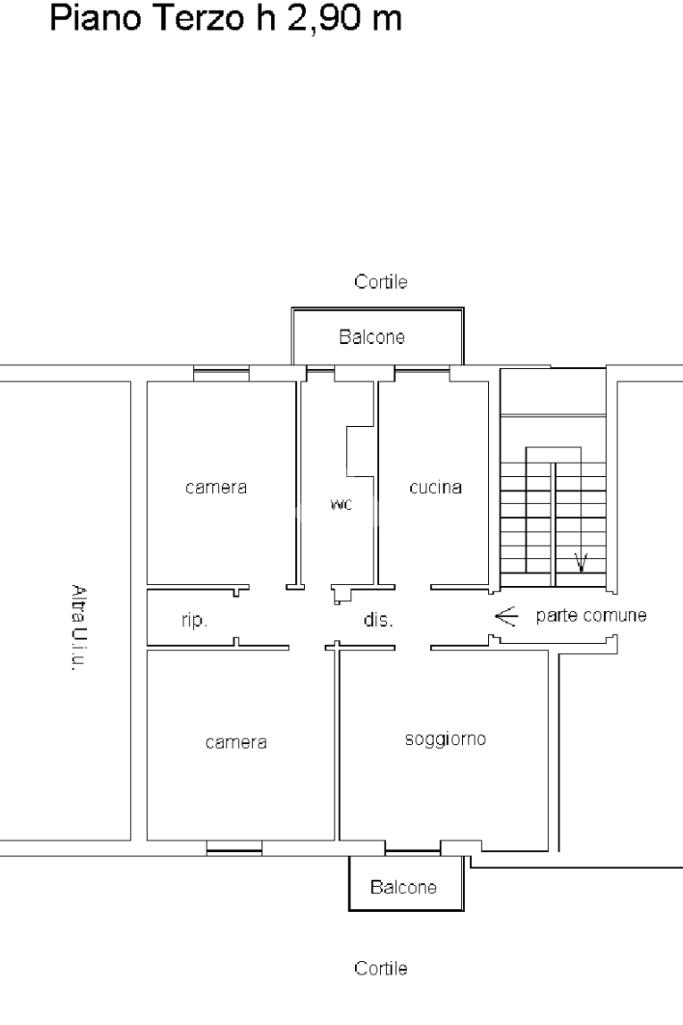
Nel cuore di Vighignolo, all'interno del complesso condominiale Villagio Siemens, proponiamo soluzione di tre locali posta al terzo piano.

L'immobile apre sul comodo ingresso, proseguento troviamo un'accogliente zona giorno completa di balcone e una cucina abitabile con affaccio sul secondo balcone.

Le due camere da letto garantiscono comfort e privacy, mentre il bagno è ben organizzato. L'appartamento è dotato di aria condizionata, assicurando un ambiente piacevole in ogni stagione.

Completa la proprietà un comodo box auto, che rappresenta un valore aggiunto per chi cerca praticità e sicurezza.

Questa soluzione abitativa è perfetta per chi desidera vivere in una zona tranquilla ed immersa nel verde, senza rinunciare alla vicinanza con i servizi e le comodità per il raggiungimento di Milano.

LIBERO SUBITO!

Mostra tutto

Nelle vicinanze

Trasporto pubblico Trasporto pubblico
Via Mereghetti - Via Airaghi (Vighignolo)
Via Mereghetti - Via Airaghi (Vighignolo)
130 m
Via Vighignolo - Via Don Minzoni (Vighignolo)
Via Vighignolo - Via Don Minzoni (Vighignolo)
200 m
Ricariche auto elettriche Ricariche auto elettriche
Settimo per Vighignolo | EnelX
600 m
Cornaredo Don Sturzo | EnelX
1,1 Km
Cornaredo Brera | EnelX
1,3 Km
A4 ADS Rho Sud | EnelX EVA+
1,7 Km
Cornaredo Colombo | EnelX
1,7 Km
Scuole Scuole
Scuola Elementare di Vighignolo
60 m
Scuole
1,0 Km
Scuola Media Statale "Paolo Sarpi"
1,3 Km
Scuola elementare
1,3 Km
Scuola Materna
1,4 Km
Farmacia Farmacia
Farmacia
190 m
Farmacia Culzoni SNC
1,1 Km
Parafarmacia Esselunga
1,7 Km
Farmacia San Martino
3,0 Km
Supermercati Supermercati
Cooperativa di Consumo
360 m
Bennet
930 m
IN'S Mercato
1,1 Km
NaturaSì
1,2 Km
Carrefour
1,3 Km
Negozi Negozi
Dama Fruits
1,0 Km
Negozi
1,7 Km
Carrefour Express
1,7 Km
I sapori del granaio
2,5 Km
ATLETAMANIA
2,7 Km
Bar Bar
Bar
220 m
Seven Bar
1,1 Km
Central Bar
1,2 Km
Nico's Bar
1,2 Km
The Sisters
1,3 Km
Ristoranti Ristoranti
Ristorante L'Angolo
220 m
Oasi Rosa
700 m
Olonella
760 m
da Antonio
940 m
Osteria del VII miglio
960 m
Mostra tutto

Caratteristiche

Rif.:
61110692
Piano:
3 di 4 (Piano medio)
Box:
1
Balconi:
2
Camere da letto:
2
Arredamento:
Completo
Mostra tutto
Prezzo Prezzo
€ 185.000
Rata mutuo Rata mutuo
€ 848 / mese
Spese annue Spese annue
€ 2.600
Proponi il tuo prezzoProponi il tuo prezzo

Classe Energetica

F
F
F
F
F
F
F
F
F
EP globale non rinnovabile:
175.00 kW h/m² anno
EP globale rinnovabile:
175.00 kW h/m² anno
EP invernale del fabbricato:
EP estiva del fabbricato:
Anno di costruzione:
1967
Riscaldamento:
Centralizzato
Tipo impianto:
A radiatori
Tipo alimentazione:
Metano

Prezzo ridotto di €1 (3%%)

Ti interessa visionare l'immobile?

Fissa un appuntamento  Fissa un appuntamento

Richiedi informazioni

* Questi campi sono obbligatori

Calcola il tuo mutuo

Semplice e senza impegno
Anticipo

( % )
Mutuo

( % )

pochi semplici passi

inserisci i tuoi dati
Questionario completato
Grazie per aver richiesto un appuntamento senza impegno con un nostro Consulente del Credito e Assicurativo.

Hai inserito correttamente tutti i dati necessari e a breve riceverai una e-mail con un link da convalidare per inviare i tuoi dati.
Affiliato
Alfeo Srl
Via Panzeri, 12 20019 Settimo Milanese (MI)

Il nostro staff


  • Morena Costantin
    Affiliata

  • Roberto Folloni
    Responsabile

  • Cristina Lo Baido
    Collaboratrice

  • Stefano Passavanti
    Collaboratore
Via Panzeri, 12 20019 Settimo Milanese (MI)
Zona: Settimo Milanese
Mostra su mappa
Orari: dal lunedì al venerdì - 9:30/12:30 e 14:30/20:15; sabato - 9:30/13:00 e 14:00/17:00
Affiliato
Alfeo Srl
Via Panzeri, 12 20019 Settimo Milanese (MI)

2025 Tecnocasa Franchising S.p.A. - P. IVA 08365160152 - Via Monte Bianco 60/A 20089 Rozzano (MI). Ogni agenzia ha un proprio titolare ed è autonoma. Privacy policy | Policy utilizzo | Cookie policy